DEISN 6
Sanierung einer denkmalgeschützten Altbauwohnung
Giesing I Leistungsphasen 1 – 8
2023
WIDD 13
Eine Neue Treppe zur Wohnraumerweiterung zweier Geschosse
Harlaching I Leistungsphasen 1 – 8
2020
ASAM 19
Sanierung einer denkmalgeschützten Altbauwohnung
Au I Leistungsphasen 1 – 8
2022
ADLZ 26
Umbau und Sanierung einer denkmalgeschützten Altbauwohnung
Isarvorstadt I Leistungsphasen 1 – 8
2021 – 2022
WIDD 13
Dachgeschossausbau eines Zweifamilienhauses
Energetische Sanierung von Dach und Fassade
Harlaching I Leistungsphasen 1 – 8
2021
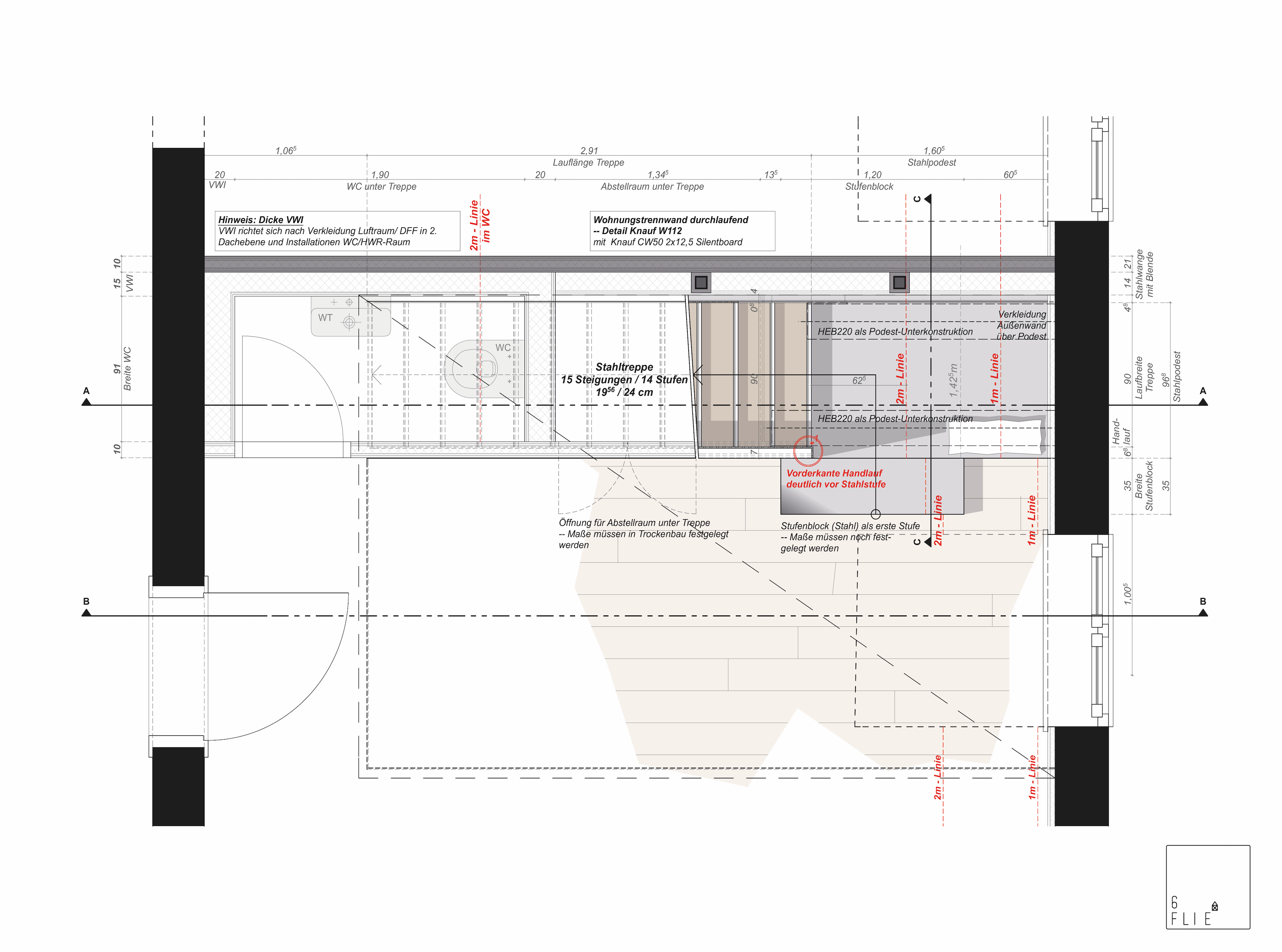
FLIE 6
Dachgeschoss Ausbau Ausführungsplanung Stahltreppe
Ludwigsvorstadt I Leistungsphase 5
2019 Projektleitung bauphase architekten
ADLZ 26
Umbau und Sanierung eines denkmalgeschützten Mehrfamilienhauses Isarvorstadt I Leistungsphasen 1 – 8 I Fassadenpreis 2017
2017 – 2018 Projektleitung bauphase architekten
DIES
Wettbewerb – Neuer Kiosk in den Seeanlagen Dießen am Ammersee 2016
MUSE
Wettbewerb – Das Museum des 20. Jahrhunderts M20 Berlin
2015
GEYE 14
Umbau und Sanierung eines Mehrfamilienhauses
Glockenbauviertel I Leistungsphasen 1 – 8
2014 – 2015 Projektleitung bauphase architekten
















































